水工建筑
1 丹江口大壩加高加固工程
丹江口大壩加高工程是國內規模最大的大壩加高工程,壩頂高程由162米增加到176.6米,正常蓄水位由157米抬高到170米。閘墩加高后,部分層問縫位于閘墩下部,這些水平層間縫削弱了閘墩剛度和整體性,影響閘墩加高后的結構受力性能。為此,對初期閘墩施加豎向預壓應力加固,以提高閘墩的整體性和耐久性。
根據設計,閘墩新增1000噸預應力根據計算每個閘墩增加1000噸預應力,長度45m,每個閘墩5孔,每孔200噸。內錨頭分為3層,3層內錨頭上下分布間距間隔5m,底層80噸,上面兩層各60噸。
圖1 丹江口大壩加高加固
2 天荒坪水工檢修廊道加固工程
華東天荒坪抽水蓄能電站于1998年11月建成并投入使用。廊道結構型式為城門洞型,除在不同廊道交接處很小的范圍內采用全斷面現澆混凝土外,廊道的其余部位均采取以下措施:廊道底板和邊墻采用現澆混凝土,而拱體采用預制混凝土,廊道受上部土壓力和水庫水壓力共同作用。
電站運行一段時間后,現場發現預制混凝土拱頂出現了沿廊道軸向方向的縱向裂縫,預制拱與現澆邊墻交接處混凝土出現剝落,這對廊道的安全運行構成了威脅。最后采用巨成公司自鎖錨桿將加固用鋼板進行錨固,場地解決問題。本項目2000年實施,使用自鎖錨桿4.6萬只,是擴孔自鎖錨桿的第一次大規模應用。
圖2 天荒坪水工檢修廊道加固
3 南水北調中線穿黃隧洞加固工程
穿黃工程位于河南省鄭州市黃河上游約30km處,線路總19.30km,主體工程由南、北岸渠道、南岸退水洞、進口建筑物、穿黃隧洞、出口建筑物、北岸防護堤、北岸新、老蟒河交叉工程,以及孤柏嘴控導工程等組成。其中最引人矚目的也是難度最大的穿黃隧洞,單洞長4250m,包括過河隧洞和邙山隧洞,其中過河隧洞段長3450m,邙山隧洞段長800m,隧洞采用雙層襯砌,外襯為預制鋼筋混凝土管片,內徑7.9m,內襯為現澆預應力鋼筋混凝土,成洞內徑為7.0m。隧洞為雙洞平行布置,中心線間距為28m,各采用1臺泥水平衡盾構機自黃河北岸豎井始發向南岸掘進施工。穿黃隧洞最大埋深35m,最小埋深23m;斷面最大水壓為4.5MPa。南水北調中線工程2014年12月12日正式通水,至2019年已運行近5年,考慮到穿黃隧洞的重要性,在保證中線干線工程正常通水的情況下,計劃安排在冬季輸水量較小時開展單洞停水檢查維護工作,本次對A洞進行檢查維護。
隧洞加固方案采用內襯鋼板加固。鋼板與管片采用自鎖錨桿進行錨固。
圖3 穿黃隧洞加固
4 深圳東江水源工程輸水隧洞加固工程
東江?源是深圳的供??程“?命線”,2021年恰逢東江?源?程通?20周年,在3?8?~4?6?停?檢修期間,巨成結構承擔了?嶺陂隧洞、碧嶺隧洞、布吉壓?隧洞段的加固?作,加固總?度近600m,是?場?規模應急搶險會戰!巨成結構投?管理?員20名,??600?,購買鋼材約600噸,按期圓滿完成了搶修任務,獲得“應急搶險鐵軍”美譽!
本次隧洞檢修主要是對隧洞襯砌環向斷?采?內貼鋼板?式進?加固補強,該處理?式均采??鎖錨桿替代化學植筋進?后錨固,解決了輸?隧洞結構在?期泡?、潮濕環境下運?耐久性的技術問題。
圖4 深圳東江水源工程輸水隧洞加固
5 南水北調中線工程渡槽止水帶修復安裝工程
自2012年-2020年期間,巨成結構承接南水北調中線90%的渡槽止水帶安裝及維護工程,造價過2000萬元,比較典型的有:沙河渡槽、澧河渡槽、嚴陵河渡槽、刁河渡槽、雙洎河渡槽、湍河渡槽、賈河渡槽、北排河渡槽、漕河渡槽和水北溝渡槽。
圖5 南水北調中線工程渡槽止水帶修復安裝
6 歐陽海灌區石洞江渡槽加固工程
本工程于2017-2018年施工。石洞江渡槽結構形式為單排架簡支不等跨變截面雙懸臂U型槽,全長1092米,建成于1969年。主要施工內容包括:渡槽內壁粘貼玻璃纖維布,外壁粘貼芳綸纖維布,排架柱包鋼,基礎加大截面,基礎增設鋼管樁等。本工程成功應用了巨成渡槽專用檢修架車,替代了復雜的鋼管架平臺,不占用耕地,社會經濟價值顯著。渡槽檢修架車安裝在渡槽頂部,啟動電機即可行走,下方懸掛作業平臺,遇到排架柱可分離旋轉展開通過,使用快捷。
圖6 歐陽海灌區石洞江渡槽加固
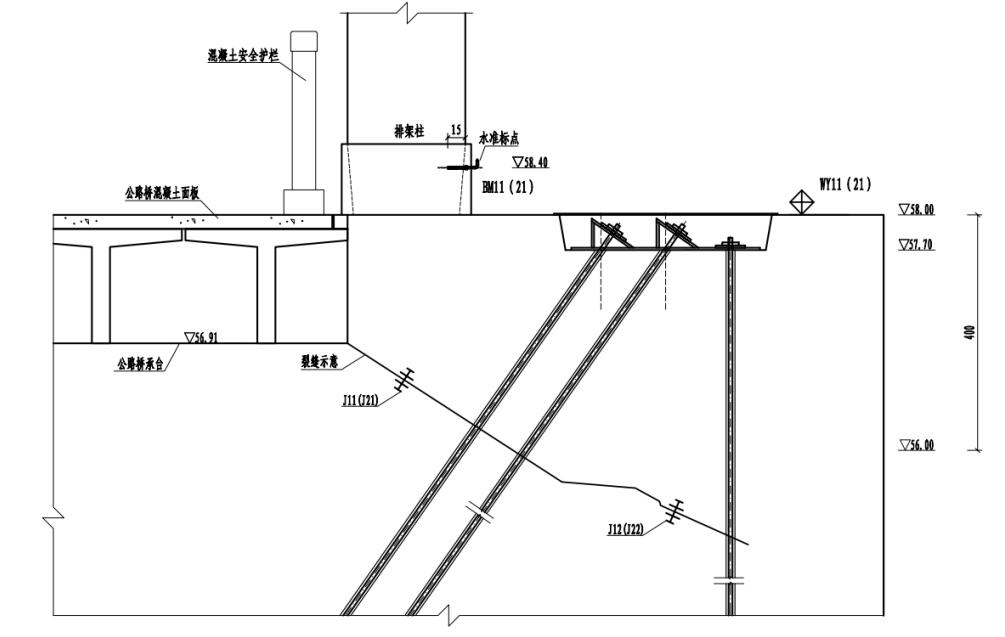
7 西洱河閘墩加固工程
西洱河二級水電站為引水式電站,利用水頭121m,電站裝機50MW。首部樞紐攔河壩為混凝土重力壩。該電站于1972年5月開工建設,1978年7月1日第一臺機組發電,1980年12月20日竣工。
西洱河梯級電站攔河壩泄洪沖砂底孔閘墩于1991年洪水前發現豎向裂縫和水平裂縫,兩孔閘墩裂縫均以閘孔中心線為中心軸呈基本對稱。中墩豎向裂縫已經左右貫通;兩個邊墩的豎向裂縫均未貫通,裂縫深度約30cm;水平裂縫均未貫通,其深度約為25cm左右。
西洱河電站大壩弧形閘門位于水下50m,尺寸12m寬12m高,閘門承受著大約7200多噸的水壓力,傳遞到兩側的閘墩上,而閘墩在弧形閘門處的配筋一般是扇形配置,在如此大的推力作用下,在扇形區域的末端出現了裂縫。根據計算結果分析,判斷裂縫成因為扇形鋼筋長度不足。
加固方案采用在閘墩內新增擴孔自鎖錨桿替代原扇形鋼筋:裂縫修補后,自鎖錨桿穿過裂縫區域,在可靠位置錨固后,施加預應力。自鎖錨桿安裝后其使用壽命與原結構相同。施加預應力后控制裂縫張開,確保結構安全性和耐久性。
圖7 西洱河大壩閘墩弧門支座牛腿加固
8 陸水水庫啟閉機排架柱基礎加固工程
圖8 陸水水庫啟閉機排架柱基礎加固


